Casa semindipendente in vendita

Arignano, Via mario graffi
€ 86.000
4 locali 4 locali
129 Mq 129 Mq
1 bagno 1 bagno

Casa semindipendente in vendita

Arignano, Via mario graffi

Descrizione annuncio

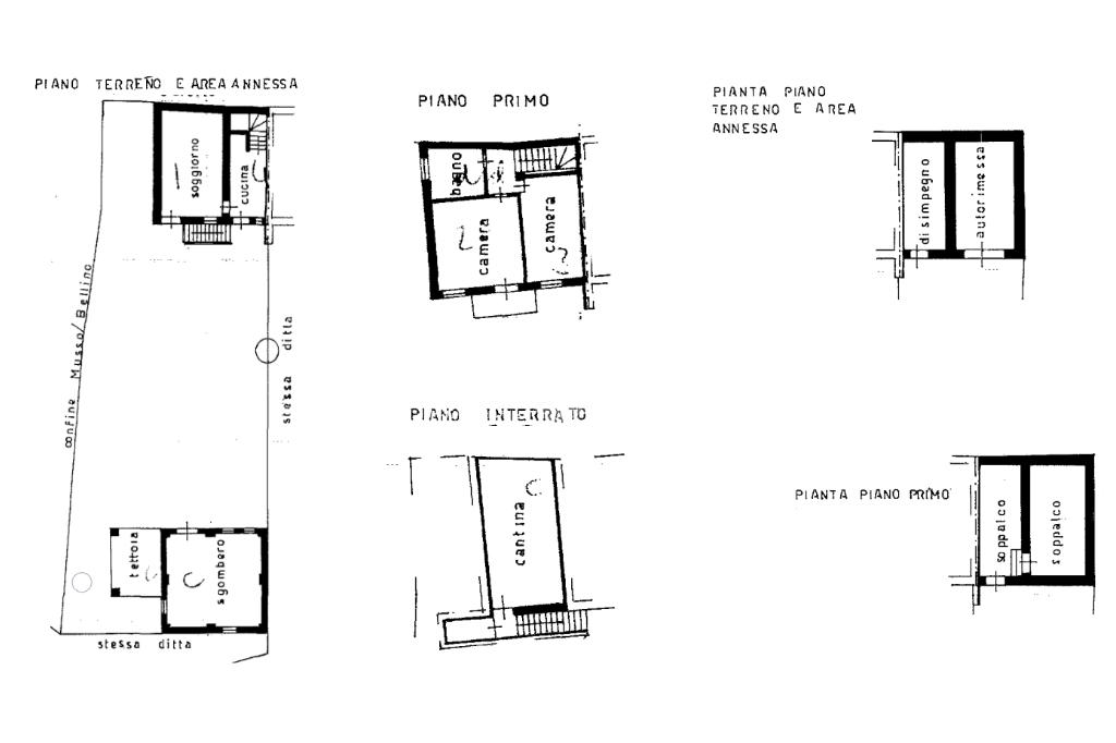
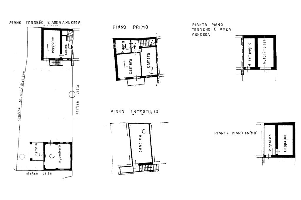
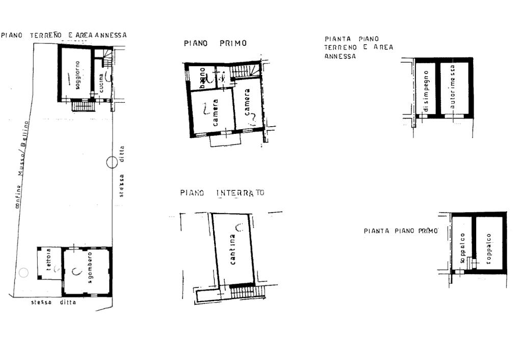
Nel comune di Arignano, in posizione tranquilla e comoda ai servizi, proponiamo in vendita una graziosa casa semindipendente libera su due lati con giardino privato. L’abitazione si sviluppa su due livelli: al piano terra troviamo una luminosa zona giorno con cucina e soggiorno, mentre al primo piano la zona notte è composta da due camere, bagno e balcone panoramico.

Al piano interrato è presente una spaziosa cantina di circa 20 mq, perfetta come locale di deposito o per chi desidera uno spazio aggiuntivo da personalizzare. Adiacente all’abitazione si trova l’autorimessa con annesso deposito e un piano superiore recuperabile ai fini abitativi, offrendo la possibilità di ampliare la metratura complessiva e creare nuovi ambienti.

Completa la proprietĂ  il terreno pianeggiante di circa 520 mq con un ulteriore deposito di 30mq sfruttabile come ricovero attrezzi.

L’immobile necessita di interventi di ristrutturazione, ma offre ampie possibilità di personalizzazione e valorizzazione, rendendolo una soluzione ideale per chi desidera creare la propria casa su misura in un contesto tranquillo e verde.

Mostra tutto

Nelle vicinanze

Ricariche auto elettriche Ricariche auto elettriche
EnelX Andezeno Cesole
2,8 Km
Scuole Scuole
Scuola Elementare di Arignano
90 m
Scuola secondaria di primo grado "Nino Costa"
2,6 Km
Scuole
2,7 Km
Farmacia Farmacia
Farmacia Musso
620 m
Farmacia Oberto
2,8 Km
Supermercati Supermercati
Supermercati
2,7 Km
Negozi Negozi
Panetteria Sotto i Portici
2,5 Km
Baruffaldi
2,7 Km
Bar Bar
Bar Centro
2,6 Km
Bar Italia
2,6 Km
Ristoranti Ristoranti
L'Òsto dël Tòrcc
2,1 Km
Dai Braji
2,6 Km
Emporio Enogastronomico
2,6 Km
Mostra tutto

Caratteristiche

Rif.:
61139122
Piano:
2 di 3 (Piano su piĂš livelli)
Box:
1
Balconi:
1
Camere da letto:
2
Arredamento:
Assente
Mostra tutto
Prezzo Prezzo
€ 86.000
Rata mutuo Rata mutuo
€ 409 / mese
Spese annue Spese annue
€ 0
Proponi il tuo prezzoProponi il tuo prezzo

Classe Energetica

G
G
G
G
G
G
G
G
G
EP globale non rinnovabile:
346.18 kW h/m² anno
EP invernale del fabbricato:
EP estiva del fabbricato:
Anno di costruzione:
1970
Riscaldamento:
Autonomo
Tipo impianto:
A radiatori
Tipo alimentazione:
Metano

Ti interessa visionare l'immobile?

Fissa un appuntamento  Fissa un appuntamento

Richiedi informazioni

Clicca su Leggi per aprire l'informativa
* Questi campi sono obbligatori

Calcola il tuo mutuo

Semplice e senza impegno
Anticipo

( % )
Mutuo

( % )

pochi semplici passi

inserisci i tuoi dati
Questionario completato
Grazie per aver richiesto un appuntamento senza impegno con un nostro Consulente del Credito e Assicurativo.

Hai inserito correttamente tutti i dati necessari e a breve riceverai una e-mail con un link da convalidare per inviare i tuoi dati.
Affiliato
Studio Riva Sas
Via Vittorio Veneto, 11 10020 Riva Presso Chieri (TO)

Il nostro staff


  • Dario Gullace
    Affiliato

  • Veronica Donadoni
    Collaboratrice

  • Luca Lazzarin
    Collaboratore

  • Denis Iulian Misariu
    Collaboratore

  • Federica Stefanutti
    Coordinatrice
Via Vittorio Veneto, 11 10020 Riva Presso Chieri (TO)
Zona: Riva Presso Chieri - Andezeno - Arignano - Mombello - Moriondo
Mostra su mappa
Orari: dal lunedĂŹ al venerdĂŹ 09.00-12:30 15.00-19.30 sabato dalle 09.00-12.30 15.00-18.00
Affiliato
Studio Riva Sas
Via Vittorio Veneto, 11 10020 Riva Presso Chieri (TO)

2026 Tecnocasa Franchising S.p.A. - P. IVA 08365160152 - Via Monte Bianco 60/A 20089 Rozzano (MI). Ogni agenzia ha un proprio titolare ed è autonoma. Privacy policy | Policy utilizzo | Cookie policy