Casa semindipendente in vendita

Marentino, Tetti corniglia - Corniglia
€ 185.000
6 locali 6 locali
216 Mq 216 Mq
2 bagni 2 bagni

Casa semindipendente in vendita

Marentino, Tetti corniglia - Corniglia

Descrizione annuncio

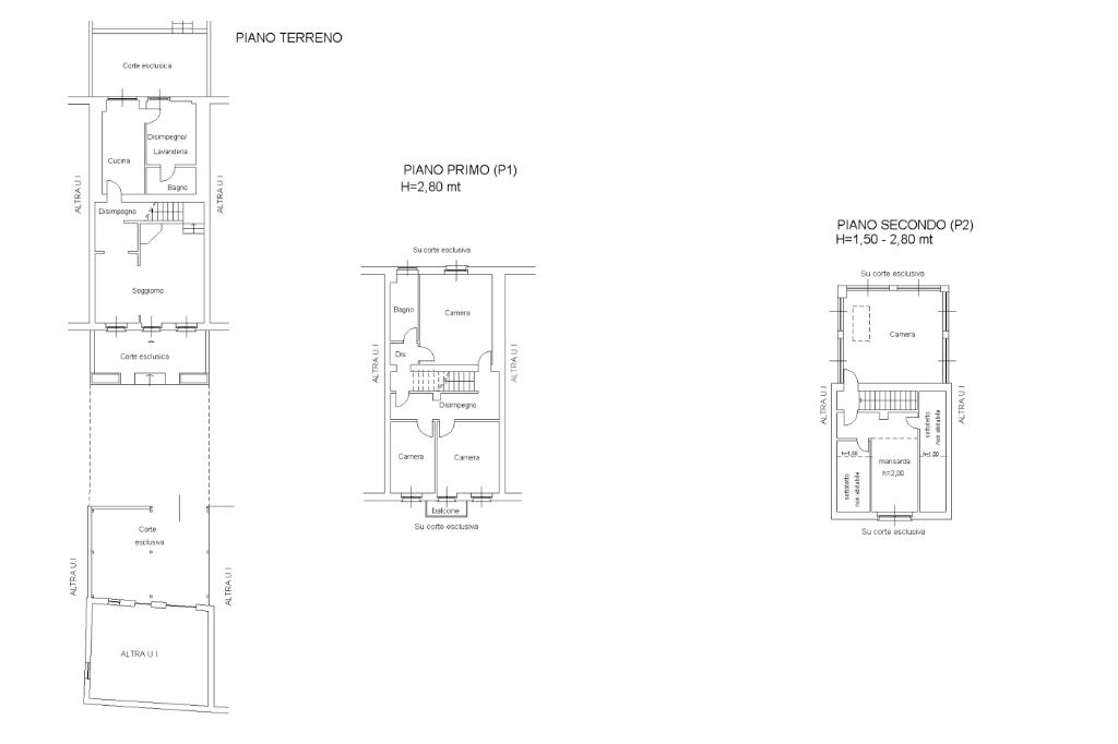
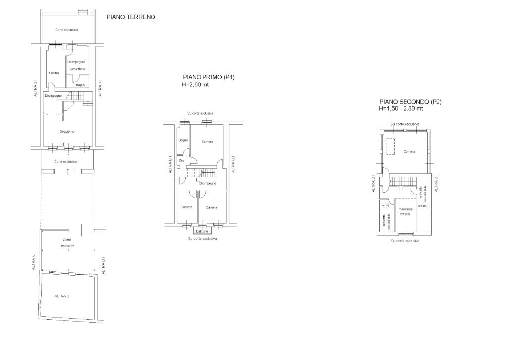
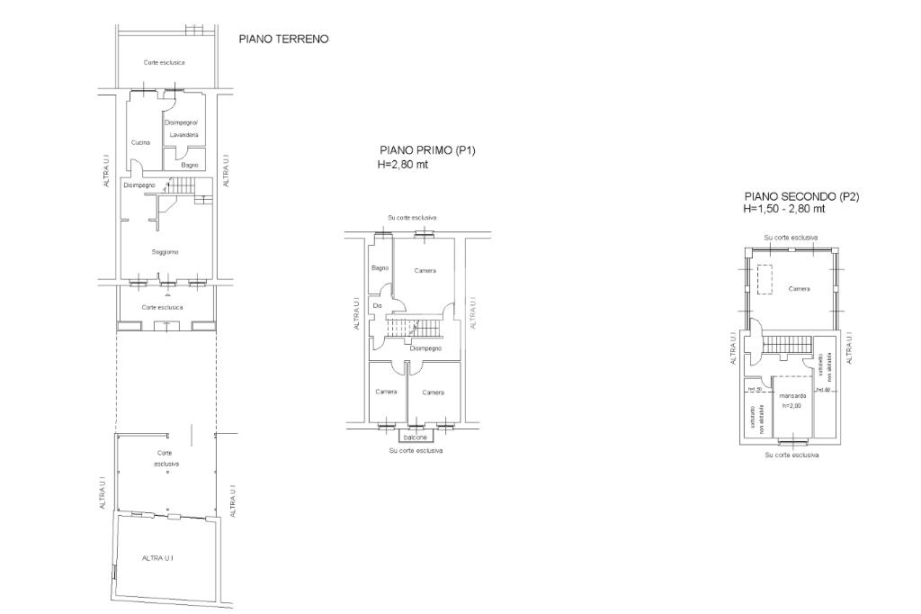
Fra le colline di Marentino, per la precisione in località Vernone, proponiamo in vendita una porzione di casa libera su due lati. Disposta su più livelli.

L’immobile gode di una posizione dominante e di una vista panoramica su tutta la valle circostante oltre ad essere ottimamente esposta. Rimanendo non lontana dai principali servizi che offrono Chieri e Gassino.

L’ingresso al piano terreno permette di accedere direttamente al luminoso soggiorno con zona pranzo che è caratterizzato da un piacevole camino a legna. Il disimpegno divide questo ambiente alla cucina abitabile. Completa il piano una comoda lavanderia utilizzabile anche come zona armadi, da cui si può accedere al patio e giardino esterno, ed un primo bagno con doccia.

La scala interna in muratura conduce al piano primo, dedicato alla zona notte, formata da tre camere da letto di ottima metratura e un secondo bagno finestrato anch’esso con doccia.

Al secondo piano dell’abitazione è presente un ulteriore camera di 26 mq. Un ambiente confortevole, adatto ad ogni utilizzo, caratterizzato da grandi finestre da cui poter ammirare la vista ed avere un ambiente luminoso. Oltre che ad ulteriori locali utilizzabili secondo le proprie esigenze.

Da questo ambiente è possibile accedere al terrazzo panoramico di circa 30 mq.

L'immobile stato oggetto di una ristrutturazione nel 2019 che ha riguardato la sostituzione della caldaia a metano e al rifacimento dell’impianto elettrico ed idraulico. Oltre che alla revisione del tetto.

I serramenti sono in PVC con doppio vetro e sono state installate le persiane alleggerite sull'ultimo piano.

All’esterno dell’abitazione troviamo dei locali di ampia metratura adatti ad essere usati come magazzino o posto auto.


La proprietà è inoltre dotata di impianto di videosorveglianza collegata anche a smartphone, impianto satellitare, allacciamento alla rete fognaria comunale.

Mostra tutto

Nelle vicinanze

Trasporto pubblico Trasporto pubblico
Sciolze (Tetti Rossetti)
Sciolze (Tetti Rossetti)
1,7 Km
Sciolze (P.za S.Rocco)
Sciolze (P.za S.Rocco)
1,8 Km
Scuole Scuole
Scuole
1,6 Km
Farmacia Farmacia
Farmacia
1,9 Km
Farmacia Oberto
2,5 Km
Mostra tutto

Caratteristiche

Rif.:
61151779
Piano:
3 di 3 (Piano su più livelli)
Box:
1
Balconi:
1
Camere da letto:
4
Arredamento:
Assente
Mostra tutto
Prezzo Prezzo
€ 185.000
Rata mutuo Rata mutuo
€ 879 / mese
Spese annue Spese annue
€ 0
Proponi il tuo prezzoProponi il tuo prezzo
Immobile valutato con T·Valuta

Classe Energetica

D
D
D
D
D
D
D
D
D
EP invernale del fabbricato:
EP estiva del fabbricato:
Anno di costruzione:
1950
Riscaldamento:
Autonomo
Tipo impianto:
A radiatori
Tipo alimentazione:
Metano

Ti interessa visionare l'immobile?

Fissa un appuntamento  Fissa un appuntamento

Richiedi informazioni

Clicca su Leggi per aprire l'informativa
* Questi campi sono obbligatori

Calcola il tuo mutuo

Semplice e senza impegno
Anticipo

( % )
Mutuo

( % )

pochi semplici passi

inserisci i tuoi dati
Questionario completato
Grazie per aver richiesto un appuntamento senza impegno con un nostro Consulente del Credito e Assicurativo.

Hai inserito correttamente tutti i dati necessari e a breve riceverai una e-mail con un link da convalidare per inviare i tuoi dati.
Affiliato
Studio Riva Sas
Via Vittorio Veneto, 11 10020 Riva Presso Chieri (TO)

Il nostro staff


  • Dario Gullace
    Affiliato

  • Veronica Donadoni
    Collaboratrice

  • Luca Lazzarin
    Collaboratore

  • Denis Iulian Misariu
    Collaboratore

  • Federica Stefanutti
    Coordinatrice
Via Vittorio Veneto, 11 10020 Riva Presso Chieri (TO)
Zona: Riva Presso Chieri - Andezeno - Arignano - Mombello - Moriondo
Mostra su mappa
Orari: dal lunedì al venerdì 09.00-12:30 15.00-19.30 sabato dalle 09.00-12.30 15.00-18.00
Affiliato
Studio Riva Sas
Via Vittorio Veneto, 11 10020 Riva Presso Chieri (TO)

2026 Tecnocasa Franchising S.p.A. - P. IVA 08365160152 - Via Monte Bianco 60/A 20089 Rozzano (MI). Ogni agenzia ha un proprio titolare ed è autonoma. Privacy policy | Policy utilizzo | Cookie policy