Casa semindipendente in vendita

Moriondo Torinese, Via riva - Bausone
€ 89.000
4 locali 4 locali
201 Mq 201 Mq
2 bagni 2 bagni

Casa semindipendente in vendita

Moriondo Torinese, Via riva - Bausone

Descrizione annuncio

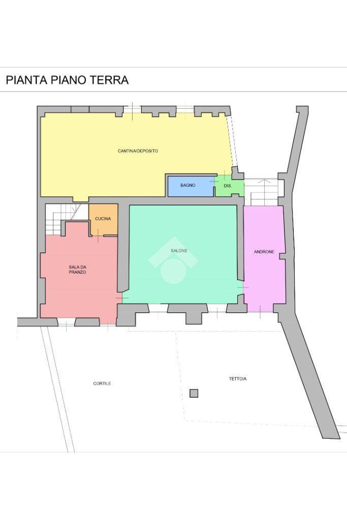
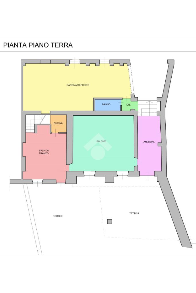
A Moriondo Torinese, nella tranquilla frazione Bausone, proponiamo una casa semindipendente libera su due lati, sviluppata su due livelli. Il piano terra accoglie un ampio soggiorno con voltino a vista, perfettamente conservato, e una cucina funzionale. Completa il piano terreno il deposito utilizzabile come autorimessa, completo di bagno, ideale per chi necessita di ulteriori spazi di servizio.

Il primo piano ospita una camera da letto con bagno e l’area dell’ex fienile, dove sono già iniziati i lavori di recupero e che offre la possibilità di ricavare altre camere o ambienti abitativi secondo le proprie esigenze. A completare la proprietà vi sono un comodo portico e un giardino pianeggiante di circa 500 metri, perfetto per vivere momenti all’aperto.

Il tetto dell’immobile è in buone condizioni strutturali, mentre la casa necessita di alcuni lavori di ristrutturazione e rifiniture che permetteranno di valorizzarne appieno le potenzialità.

Mostra tutto

Nelle vicinanze

Trasporto pubblico Trasporto pubblico
Vigo
Vigo
2,9 Km
Scuole Scuole
Scuola Elementare di Arignano
2,6 Km
Scuole
2,8 Km
Istituto professionale Pietro Andriano
2,8 Km
Scuola Media San Giuseppe Cafasso
2,9 Km
Scuola Elementare Statale San Giovanni Bosco
2,9 Km
Farmacia Farmacia
Farmacia
1,5 Km
Farmacia Musso
2,4 Km
Supermercati Supermercati
Mercatino
1,8 Km
simply
1,9 Km
Negozi Negozi
Abbigliamento per Bambini
1,9 Km
Bar Bar
Vittorio Emanuele Bar
1,9 Km
Ristoranti Ristoranti
S. Martino
1,8 Km
Albergo Ristorante Ciocca
2,9 Km
Mostra tutto

Caratteristiche

Rif.:
61145104
Piano:
2 di 2 (Piano su più livelli)
Balconi:
1
Camere da letto:
1
Arredamento:
Assente
Condizionamento:
Assente
Mostra tutto
Prezzo Prezzo
€ 89.000
Rata mutuo Rata mutuo
€ 420 / mese
Spese annue Spese annue
€ 0
Proponi il tuo prezzoProponi il tuo prezzo
Immobile valutato con T·Valuta

Classe Energetica

F
F
F
F
F
F
F
F
F
EP globale non rinnovabile:
259.24 kW h/m² anno
EP globale rinnovabile:
5.08 kW h/m² anno
EP invernale del fabbricato:
EP estiva del fabbricato:
Anno di costruzione:
1970
Riscaldamento:
Autonomo
Tipo impianto:
A stufa
Tipo alimentazione:
Altro

Ti interessa visionare l'immobile?

Fissa un appuntamento  Fissa un appuntamento

Richiedi informazioni

Clicca su Leggi per aprire l'informativa
* Questi campi sono obbligatori

Calcola il tuo mutuo

Semplice e senza impegno
Anticipo

( % )
Mutuo

( % )

pochi semplici passi

inserisci i tuoi dati
Questionario completato
Grazie per aver richiesto un appuntamento senza impegno con un nostro Consulente del Credito e Assicurativo.

Hai inserito correttamente tutti i dati necessari e a breve riceverai una e-mail con un link da convalidare per inviare i tuoi dati.
Affiliato
Studio Riva Sas
Via Vittorio Veneto, 11 10020 Riva Presso Chieri (TO)

Il nostro staff


  • Dario Gullace
    Affiliato

  • Luca Lazzarin
    Collaboratore

  • Denis Iulian Misariu
    Collaboratore

  • Federica Stefanutti
    Coordinatrice
Via Vittorio Veneto, 11 10020 Riva Presso Chieri (TO)
Zona: Riva Presso Chieri - Andezeno - Arignano - Mombello - Moriondo
Mostra su mappa
Orari: dal lunedì al venerdì 09.00-12:30 15.00-19.30 sabato dalle 09.00-12.30 15.00-18.00
Affiliato
Studio Riva Sas
Via Vittorio Veneto, 11 10020 Riva Presso Chieri (TO)

2025 Tecnocasa Franchising S.p.A. - P. IVA 08365160152 - Via Monte Bianco 60/A 20089 Rozzano (MI). Ogni agenzia ha un proprio titolare ed è autonoma. Privacy policy | Policy utilizzo | Cookie policy