Bilocale in vendita

Riva Presso Chieri, Via Pessione
€ 80.000
2 locali 2 locali
110 Mq 110 Mq
1 bagno 1 bagno

Bilocale in vendita

Riva Presso Chieri, Via Pessione

Descrizione annuncio

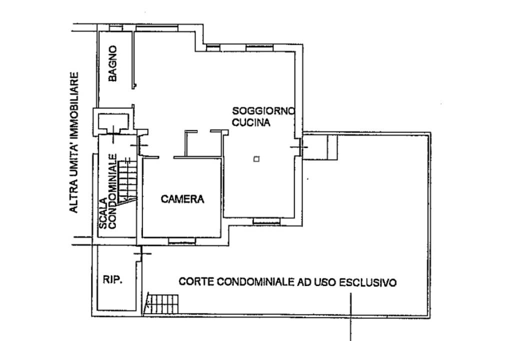
All’interno di una palazzina in elegante paramano tipica degli anni ’80, proponiamo in vendita un appartamento di circa 90 mq situato al piano seminterrato.

L’immobile si presenta accogliente e ben distribuito, composto da un soggiorno di ampia metratura con cucina a vista, una spaziosa camera da letto, un bagno con doccia e un pratico ripostiglio.

Gli ambienti molto funzionali, offrono il giusto equilibrio tra comfort e praticità, con la possibilità di personalizzare gli spazi secondo le proprie esigenze.

Completa la proprietà un cortile condominiale con uso esclusivo, ideale per momenti di relax all’aperto, e un comodo posto auto interno, che garantisce sicurezza. La palazzina si trova a pochi passi dai principali servizi e collegamenti.

Un’opportunità interessante per chi desidera un’abitazione comoda e versatile.

Mostra tutto

Nelle vicinanze

Trasporto pubblico Trasporto pubblico
Pessione
Pessione
2,8 Km
Pessione
Pessione
2,8 Km
Scuole Scuole
Scuole
790 m
Scuola primaria secondaria di Riva Presso Chieri
820 m
Scuola Primaria Pessione
2,6 Km
Farmacia Farmacia
Farmacia
250 m
Farmacia Aliberti
2,8 Km
Supermercati Supermercati
Borello
750 m
Penny
2,9 Km
Ristoranti Ristoranti
AgriGrill
1,7 Km
Lucky Lucy Saloon
2,7 Km
Osteria Da Piera
2,7 Km
Mostra tutto

Caratteristiche

Rif.:
61139293
Piano:
5 di 4 con ascensore (Piano seminterrato)
Posti auto:
1
Camere da letto:
1
Arredamento:
Assente
Condizionamento:
Assente
Mostra tutto
Prezzo Prezzo
€ 80.000
Rata mutuo Rata mutuo
€ 380 / mese
Spese annue Spese annue
€ 2.000
Proponi il tuo prezzoProponi il tuo prezzo

Classe Energetica

G
G
G
G
G
G
G
G
G
EP globale non rinnovabile:
402.41 kW h/m² anno
Anno di costruzione:
1972
Riscaldamento:
Centralizzato
Tipo impianto:
A radiatori
Tipo alimentazione:
Metano

Ti interessa visionare l'immobile?

Fissa un appuntamento  Fissa un appuntamento

Richiedi informazioni

Clicca su Leggi per aprire l'informativa
* Questi campi sono obbligatori

Calcola il tuo mutuo

Semplice e senza impegno
Anticipo

( % )
Mutuo

( % )

pochi semplici passi

inserisci i tuoi dati
Questionario completato
Grazie per aver richiesto un appuntamento senza impegno con un nostro Consulente del Credito e Assicurativo.

Hai inserito correttamente tutti i dati necessari e a breve riceverai una e-mail con un link da convalidare per inviare i tuoi dati.
Affiliato
Studio Riva Sas
Via Vittorio Veneto, 11 10020 Riva Presso Chieri (TO)

Il nostro staff


  • Dario Gullace
    Affiliato

  • Veronica Donadoni
    Collaboratrice

  • Luca Lazzarin
    Collaboratore

  • Denis Iulian Misariu
    Collaboratore

  • Federica Stefanutti
    Coordinatrice
Via Vittorio Veneto, 11 10020 Riva Presso Chieri (TO)
Zona: Riva Presso Chieri - Andezeno - Arignano - Mombello - Moriondo
Mostra su mappa
Orari: dal lunedì al venerdì 09.00-12:30 15.00-19.30 sabato dalle 09.00-12.30 15.00-18.00
Affiliato
Studio Riva Sas
Via Vittorio Veneto, 11 10020 Riva Presso Chieri (TO)

2026 Tecnocasa Franchising S.p.A. - P. IVA 08365160152 - Via Monte Bianco 60/A 20089 Rozzano (MI). Ogni agenzia ha un proprio titolare ed è autonoma. Privacy policy | Policy utilizzo | Cookie policy