Quadrilocale in vendita

Riva Presso Chieri, Via Lino Fortuna
€ 75.000
4 locali 4 locali
90 Mq 90 Mq
1 bagno 1 bagno

Quadrilocale in vendita

Riva Presso Chieri, Via Lino Fortuna

Descrizione annuncio

In una zona residenziale tranquilla e immersa nel verde di Riva presso Chieri, proponiamo in vendita un luminoso appartamento situato al terzo piano di un contesto condominiale composto da sole sei unità abitative, caratterizzato da un piacevole e curato giardino comune.

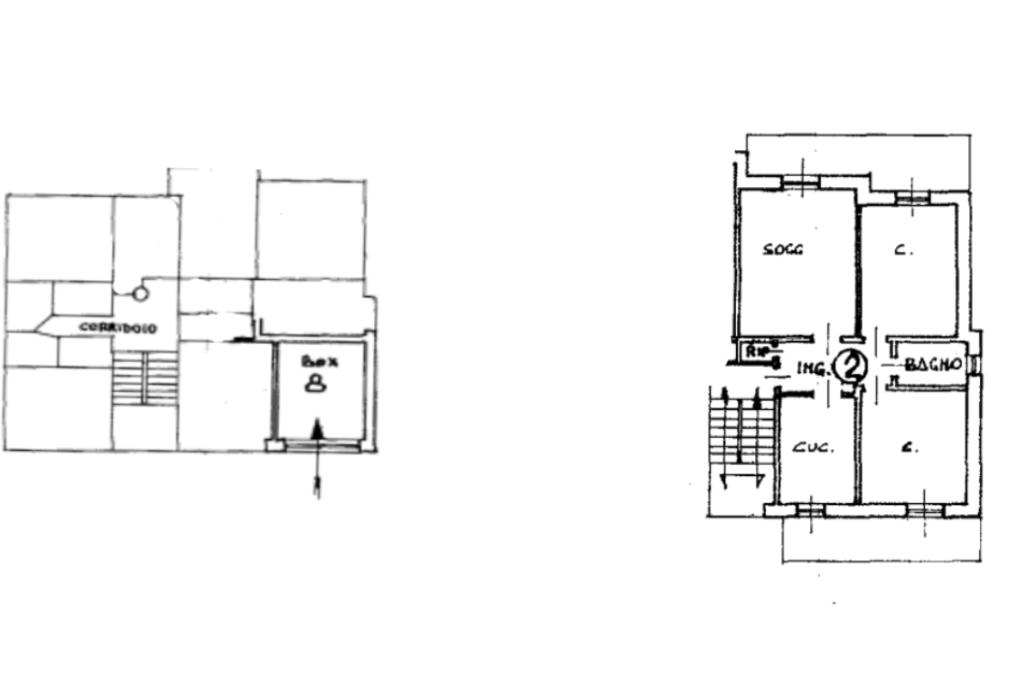
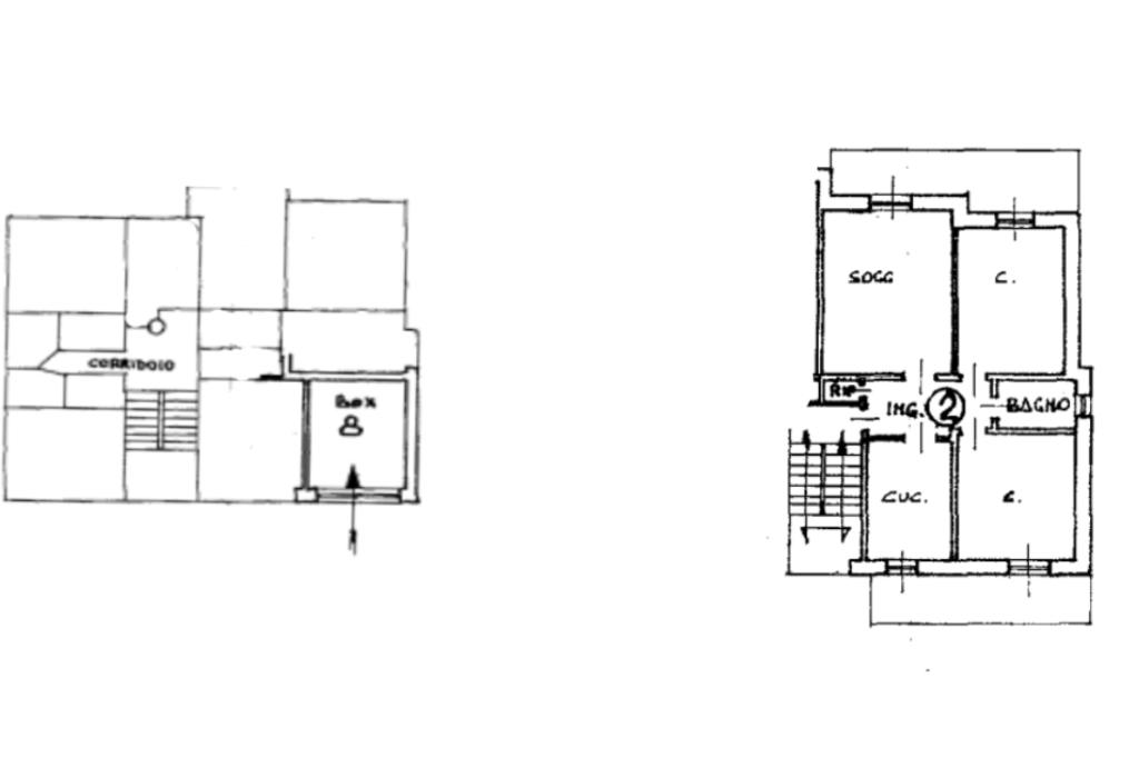
L’alloggio si sviluppa su un unico livello ed è composto da ingresso su ampio disimpegno, cucina abitabile, soggiorno, due camere da letto e bagno. Tutti gli ambienti godono di un’ottima luminosità e offrono l’accesso diretto a due spaziosi balconi, ideali per vivere momenti di relax all’aperto. L’esposizione solare è particolarmente favorevole, garantendo luce naturale durante tutto l’arco della giornata.

Gli infissi sono in legno con doppio vetro, assicurando un buon isolamento termico e acustico. Completa la proprietà una cantina al piano terreno. È inoltre disponibile un box auto singolo acquistabile separatamente al prezzo di €10.000.

Soluzione ideale per chi è alla ricerca di tranquillità, spazi ben distribuiti e contatto con il verde, senza rinunciare alla comodità dei servizi.

Mostra tutto

Nelle vicinanze

Scuole Scuole
Scuola primaria secondaria di Riva Presso Chieri
620 m
Scuole
620 m
Scuola Primaria Pessione
3,0 Km
Farmacia Farmacia
Farmacia
390 m
Supermercati Supermercati
Borello
380 m
Ristoranti Ristoranti
AgriGrill
1,3 Km
Lucky Lucy Saloon
2,9 Km
Mostra tutto

Caratteristiche

Rif.:
61193484
Piano:
3 di 3 (ultimo Piano)
Box:
1
Posti auto:
1
Balconi:
2
Camere da letto:
2
Mostra tutto
Prezzo Prezzo
€ 75.000
Prezzo box Prezzo box
€ 10.000
Rata mutuo Rata mutuo
€ 354 / mese
Spese annue Spese annue
€ 1.900
Proponi il tuo prezzoProponi il tuo prezzo

Classe Energetica

F
F
F
F
F
F
F
F
F
EP globale non rinnovabile:
192.22 kW h/m² anno
EP globale rinnovabile:
12.61 kW h/m² anno
EP invernale del fabbricato:
EP estiva del fabbricato:
Anno di costruzione:
1980
Riscaldamento:
Centralizzato
Tipo impianto:
A radiatori
Tipo alimentazione:
Metano

Ti interessa visionare l'immobile?

Fissa un appuntamento  Fissa un appuntamento

Richiedi informazioni

Clicca su Leggi per aprire l'informativa
* Questi campi sono obbligatori

Calcola il tuo mutuo

Semplice e senza impegno
Anticipo

( % )
Mutuo

( % )

pochi semplici passi

inserisci i tuoi dati
Questionario completato
Grazie per aver richiesto un appuntamento senza impegno con un nostro Consulente del Credito e Assicurativo.

Hai inserito correttamente tutti i dati necessari e a breve riceverai una e-mail con un link da convalidare per inviare i tuoi dati.
Affiliato
Studio Riva Sas
Via Vittorio Veneto, 11 10020 Riva Presso Chieri (TO)

Il nostro staff


  • Dario Gullace
    Affiliato

  • Veronica Donadoni
    Collaboratrice

  • Luca Lazzarin
    Collaboratore

  • Denis Iulian Misariu
    Collaboratore

  • Federica Stefanutti
    Coordinatrice
Via Vittorio Veneto, 11 10020 Riva Presso Chieri (TO)
Zona: Riva Presso Chieri - Andezeno - Arignano - Mombello - Moriondo
Mostra su mappa
Orari: dal lunedì al venerdì 09.00-12:30 15.00-19.30 sabato dalle 09.00-12.30 15.00-18.00
Affiliato
Studio Riva Sas
Via Vittorio Veneto, 11 10020 Riva Presso Chieri (TO)

2026 Tecnocasa Franchising S.p.A. - P. IVA 08365160152 - Via Monte Bianco 60/A 20089 Rozzano (MI). Ogni agenzia ha un proprio titolare ed è autonoma. Privacy policy | Policy utilizzo | Cookie policy