Bifamiliare in vendita

Riva Presso Chieri, Via delle moglie
€ 370.000
8 locali 8 locali
412 Mq 412 Mq
4 bagni 4 bagni

Bifamiliare in vendita

Riva Presso Chieri, Via delle moglie

Descrizione annuncio

A Riva presso Chieri proponiamo in vendita una casa bifamiliare libera su quattro lati, costruita e completata negli anni ’85, caratterizzata da un’ottima esposizione solare. L’immobile, mantenuto in buono stato sia dal punto di vista conservativo che strutturale, necessita tuttavia di alcuni interventi di miglioria e ammodernamento, offrendo così la possibilità di personalizzare gli ambienti secondo le proprie esigenze. Le due unità abitative dispongono di ingressi, utenze e impianti di riscaldamento completamente indipendenti, ciascuno servito da una propria caldaia, garantendo così massima autonomia gestionale.

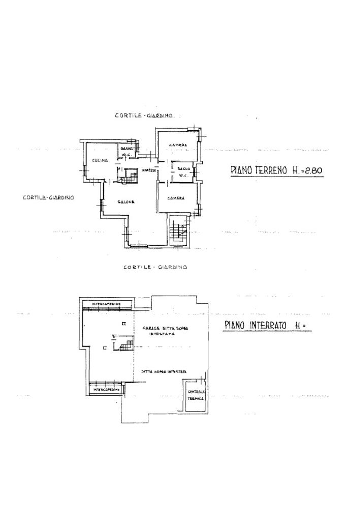
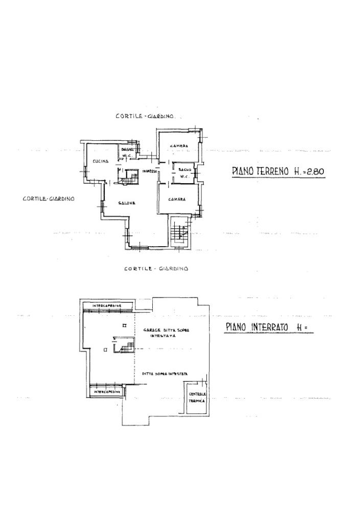
La prima abitazione, situata al piano terra, si apre su un’accogliente e ampia zona giorno, particolarmente luminosa grazie alle porte finestre che permettono l’accesso diretto ai portici coperti; a questa si affiancano una cucina separata e abitabile e un bagno di servizio. La zona notte comprende due spaziose camere da letto e un secondo bagno. Gli sfoghi esterni coperti rappresentano un valore aggiunto, ideali per pranzi all’aperto e momenti di relax.

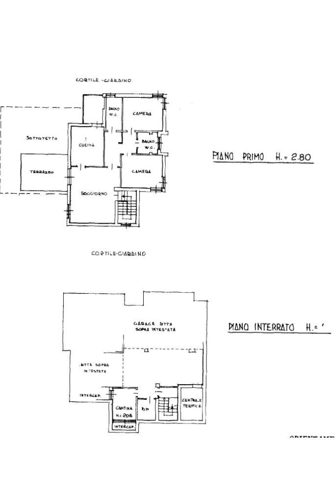
La seconda unità, posta al primo piano, offre un ingresso su soggiorno e una cucina abitabile separata, entrambi con uscita su un grande terrazzo di circa 20 mq, uno spazio esterno arioso e sfruttabile con vista aperta. La cucina gode inoltre di un ulteriore terrazzino privato. Anche questo livello è completato da due camere da letto e da due bagni, garantendo comodità e funzionalità.

Il piano interrato, accessibile tramite scala interna, ospita un ampio locale versatile, ideale e recuperabile come tavernetta, insieme ai locali di sgombero, alla cantina e alla centrale termica. Tutti gli ambienti sono collegati internamente all’autorimessa, raggiungibile comodamente attraverso la rampa esterna. La proprietà è circondata da un’area esterna, di circa 500mq, in parte verde e in parte pavimentata, che abbraccia l’intero perimetro della casa, offrendo privacy e spazi fruibili. Completano la proprietà tre box auto esterni.

È inoltre possibile acquistare il lotto di terreno edificabile adiacente di circa 670mq al prezzo di € 25.000,00, ideale per chi desidera ampliare gli spazi o valutare un progetto aggiuntivo sfruttando la cubatura presente.

Mostra tutto

Nelle vicinanze

Trasporto pubblico Trasporto pubblico
Pessione
Pessione
2,8 Km
Pessione
Pessione
2,8 Km
Scuole Scuole
Scuola primaria secondaria di Riva Presso Chieri
980 m
Scuole
990 m
Scuola Primaria Pessione
2,7 Km
Farmacia Farmacia
Farmacia
650 m
Farmacia Aliberti
2,8 Km
Supermercati Supermercati
Borello
690 m
Ristoranti Ristoranti
AgriGrill
1,2 Km
Osteria Da Piera
2,8 Km
Mostra tutto

Caratteristiche

Rif.:
61151767
Piano:
3 di 2
Box:
4
Balconi:
1
Terrazzi:
1
Camere da letto:
4
Mostra tutto
Prezzo Prezzo
€ 370.000
Rata mutuo Rata mutuo
€ 1.746 / mese
Spese annue Spese annue
€ 0
Proponi il tuo prezzoProponi il tuo prezzo

Classe Energetica

E
E
E
E
E
E
E
E
E
EP globale non rinnovabile:
131.30 kW h/m² anno
EP globale rinnovabile:
5.51 kW h/m² anno
EP invernale del fabbricato:
EP estiva del fabbricato:
Anno di costruzione:
1980
Riscaldamento:
Autonomo
Tipo impianto:
A radiatori
Tipo alimentazione:
Metano

Ti interessa visionare l'immobile?

Fissa un appuntamento  Fissa un appuntamento

Richiedi informazioni

Clicca su Leggi per aprire l'informativa
* Questi campi sono obbligatori

Calcola il tuo mutuo

Semplice e senza impegno
Anticipo

( % )
Mutuo

( % )

pochi semplici passi

inserisci i tuoi dati
Questionario completato
Grazie per aver richiesto un appuntamento senza impegno con un nostro Consulente del Credito e Assicurativo.

Hai inserito correttamente tutti i dati necessari e a breve riceverai una e-mail con un link da convalidare per inviare i tuoi dati.
Affiliato
Studio Riva Sas
Via Vittorio Veneto, 11 10020 Riva Presso Chieri (TO)

Il nostro staff


  • Dario Gullace
    Affiliato

  • Luca Lazzarin
    Collaboratore

  • Denis Iulian Misariu
    Collaboratore

  • Federica Stefanutti
    Coordinatrice
Via Vittorio Veneto, 11 10020 Riva Presso Chieri (TO)
Zona: Riva Presso Chieri - Andezeno - Arignano - Mombello - Moriondo
Mostra su mappa
Orari: dal lunedì al venerdì 09.00-12:30 15.00-19.30 sabato dalle 09.00-12.30 15.00-18.00
Affiliato
Studio Riva Sas
Via Vittorio Veneto, 11 10020 Riva Presso Chieri (TO)

2025 Tecnocasa Franchising S.p.A. - P. IVA 08365160152 - Via Monte Bianco 60/A 20089 Rozzano (MI). Ogni agenzia ha un proprio titolare ed è autonoma. Privacy policy | Policy utilizzo | Cookie policy